45 Ash St, Newton MA  02466-1897 exterior

45 Ash St Newton, MA 02466 / 1897

Corpus Christi
Property Report

Information about property on 45 Ash St, Newton MA, 02466-1897. Find out owner contacts, building history, price, neighborhood at Homemetry Address Directory.

Property Details

As is shown in our records this property is based at 45 Ash St, Newton, MA.

Facts

  • Built in 1962
  • Property use Rectory/parsonage
  • Lot size 32,251 sqft
  • Effective area 6,120 sqft
  • Gross building area 8,346 sqft
  • Building type Commercial
  • Rooms 4
  • Stories 2
  • Fuel type Typical
  • Air conditioning None
  • Frontage 240 feet
  • Basement area 2,782 sqft
  • Heating & Cooling
  • Heat type Hot Water

Misc

  • Units 1

Householders and Tenants for 45 Ash St, Newton MA

Possible residents contact details

Person Name Phone Number Additional Info
Camerata Boston
617-558-****
Corpus C Church
David M Murphy
Dominic Jung
716-603-****
Job:
Religious
Joseph F Mcglone Age: 98
617-965-****
Residential status:
Homeowner
Job:
Service Occupations

Businesses

Organization Phone Number Additional Info
Auburndale Safelock
617-831-****
Industry:
Locksmith
Blue Heron Renaissance Choir, Inc
Industry:
Business Services at Non-Commercial SiteMembership Organization
Boston Camerata
617-262-****
Industry:
Theatrical Producers/Services
Type of Business:
Nonprofit Corporation
SIC6:
792207 - Theatres-Live
Corpus Christi Church
617-244-****
617-558-****
617-244-****
Categories:
Catholic ChurchesChurches
Industry:
Religious Organization
SIC:
8661 - Religious Organizations
Site:
ccparish.com
Korean Catholic
617-244-****
Categories:
Churches
Industry:
Nonclassifiable Establishments
Korean Catholic Community Of Boston
617-244-****
Categories:
Churches
Mary Knoll Fathers
Industry:
College/University
Kathryn Welter
617-262-****
Organization:
Boston Camerata
Title:
Executive Director
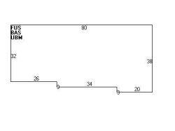
45 Ash St, Newton MA  02466-1897 plot plan 45 Ash St, Newton MA  02466-1897 floor plan 45 Ash St, Newton MA  02466-1897 aerial view

Cost estimate history

YearAssessment
2016 $1,269,400
2015 $1,269,400
2014 $1,199,300
2013 $1,199,300
2012 $1,199,300
2011 $1,022,200
2010 $1,022,200
2009 $1,022,200
2008 $1,022,200

Where is 45 Ash St, Newton MA located on map?

Ash St Fire Incident History

To date, we have no information about fire incidents in 2025
09 May 2014 Building fires
Property Use —
Residential, other
Area of Origin —
Common room, den, family room, living room, lounge
First Ignition —
Rubbish, trash, or waste
Heat Source —
Cigarette
23 May 2007 Building fires
Property Use —
1 or 2 family dwelling
Area of Origin —
Laundry area, wash house (laundry)
First Ignition —
Wearing apparel not on a person
Heat Source —
Heat from powered equipment, other

45 Ash St incidents registered in FEMA
(Federal Emergency Management Agency)

To date, we have no information about incidents registered in FEMA in 2025
27 Jan 2003 Medical assist, assist EMS crew
Property Use —
Church, mosque, synagogue, temple, chapel

Ash St Incidents registered in FEMA
(Federal Emergency Management Agency)

To date, we have no information about incidents registered in FEMA in 2025
16 Nov 2003 Smoke detector activation due to malfunction
Property Use —
Multifamily dwellings
19 Oct 2003 Medical assist, assist EMS crew
Property Use —
Multifamily dwellings
17 Oct 2003 Medical assist, assist EMS crew
Property Use —
Multifamily dwellings
17 Oct 2003 Dispatched & canceled en route
Property Use —
Boarding/rooming house, residential hotels

View more

Properties Nearby

Street AddressResidens/Landlords
B Khokasian, Nayri Khokasian
P Faria
P A Clendinen
24 Ash St, Newton, MA 02466-1819
Single Family
  • 4 beds
  • 1.5 baths
  • 4,209 sqft
  • Built in 1888
Ann M Stack, George P Stack
27 Ash St, Newton, MA 02466-1818
Two Family
  • 4 beds
  • 2 baths
  • 6,804 sqft
  • Built in 1901
Jordan L Bentley, Megan Oliver
28 Ash St, Newton, MA 02466-1819
Single Family
  • 4 beds
  • 2.5 baths
  • 4,049 sqft
  • Built in 1910
IRVEN DEVORE PATRACIA DEVORE TRUST, Irven Tr Devore
35 Ash St, Newton, MA 02466-1818
Church/mosque/synagogue/temple
  • 2 baths
  • 18,565 sqft
  • Built in 1909
38 Ash St, Newton, MA 02466-1811
Religious Other
  • Norumbega Apts
  • Lot: 19,567 sqft
Paul F Curley, Nadine G Dalo
 

FAQ about the house at 45 Ash St, Newton, MA


NOTICE: You may not use SpamRoom or the information it provides to make decisions about employment, credit, housing or any other purpose that would require Fair Credit Reporting Act (FCRA) compliance. SpamRoom is not a Consumer Reporting Agency (CRA) as defined by the FCRA and does not provide consumer reports.