361 Blair St Felton, CA 95018 / 9419

Residence for Single Family

(UPDATED: 08/21/2025)
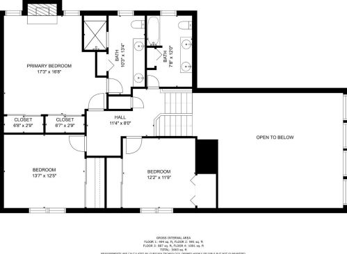
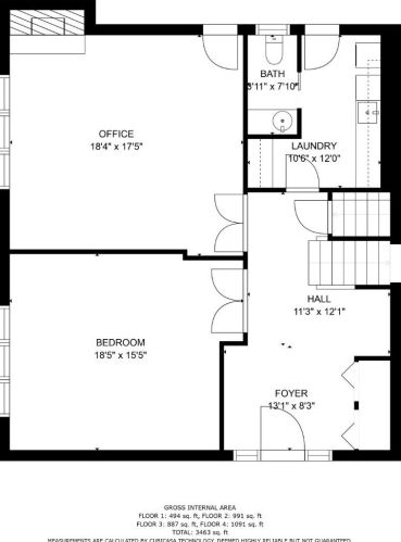
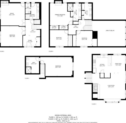
  • 3 Beds
  • 3 Baths
  • 3.500 square feet
Sold Mar 2023
$1,350,000
Property Report

Information about property on 361 Blair St, Felton CA, 95018-9419. Find out owner contacts, building history, price, neighborhood at Homemetry Address Directory.

Property Details

This approximately thirty-five hundred square feet property was built in the eighties on 0,29 acres and it offers SEVEN rooms including three bedrooms and three bathrooms.

Facts

  • Built in 1985
  • Lot size 0,29 acres
  • Floor size 3,500 sqft
  • Rooms 7
  • Bedrooms 3
  • Air conditioning Central
  • Exterior Home Features
  • Roof type Tile
  • Parking & Garage
  • Parking Garage
  • Parking spaces 5

Listing info

  • Last sold Jun 2012 for $615,000

Features

  • Fireplace

Householders and Tenants for 361 Blair St, Felton CA

Possible residents contact details

Person Name Phone Number Additional Info
Anita R Morgan
831-246-****
Residential status:
Homeowner
Chris Loughridge
831-335-****
Christine D Porto
831-704-****
Christine Dalporto
Christine M Loughridge Age: 80
562-889-****
Residential status:
Homeowner
Job:
Construction and Extraction Occupations
Clemmons A Loughridge
831-335-****
Frank A Dalporto Age: 58
Justin R Morgan Age: 51
831-246-****
Residential status:
Homeowner
Liana Fielder
831-335-****
Residential status:
Renter
Job:
Professional Specialty Occupations
Luella H Willig Age: 102
831-335-****
Mark Vredevelt Age: 69
Residential status:
Homeowner
Matt Loughridge
831-335-****
Matthew C Loughridge
831-335-****
Mrd C Loughridge
Olga Loughridge
831-335-****
Porto C Dal
831-704-****
Richard G Loughridge Age: 77
831-335-****
Residential status:
Homeowner
Job:
Construction and Extraction Occupations

Purchase History

DateEventPriceSourceAgents
06/18/2012 Sold $615,000 Public records

Cost estimate history

YearTaxAssessmentMarket
2014 $7,691 $630,148 N/A

Where is 361 Blair St, Felton CA located on map?

Market Activities

To date, we have no information about market activities in 2025
Mar 2023 Sold
361 Blair St
Price history :
  • Single Family
  • 3,500 sqft
  • 5 beds
  • 4 baths
Feb 2023 Sold
361 Blair St
Price history :
  • Single Family
  • 3,500 sqft
  • 5 beds
  • 4 baths

View more

361 Blair St Fire Incident History

To date, we have no information about fire incidents in 2025
27 Sep 2018 Building fires
Property Use —
1 or 2 family dwelling
Area of Origin —
Common room, den, family room, living room, lounge
First Ignition —
Structural component or finish, other
Heat Source —
Arcing

Blair St Fire Incident History

To date, we have no information about fire incidents in 2025
27 Sep 2018 Building fires
Property Use —
1 or 2 family dwelling
Area of Origin —
Common room, den, family room, living room, lounge
First Ignition —
Structural component or finish, other
Heat Source —
Arcing

Blair St Incidents registered in FEMA
(Federal Emergency Management Agency)

To date, we have no information about incidents registered in FEMA in 2025
27 Dec 2007 Authorized controlled burning
Property Use —
1 or 2 family dwelling
21 Jul 2007 Gas leak (natural gas or LPG)
Property Use —
1 or 2 family dwelling

Properties Nearby

Street AddressResidens/Landlords
160 Blair St, Felton, CA 95018-9470
Single Family Residential
  • Lot: 10,193 sqft
  • Built in 1941
Michael A Menard, Gabriel Somerville
Kenneth Solomon
270 Blair St, Felton, CA 95018-9419
Single Family Residential
  • 2 beds
  • 1 bath
  • Lot: 8,364 sqft
  • Built in 1969
Sara Bennett, B E Doise
281 Blair St, Felton, CA 95018-9419
Single Family
  • 3 beds
  • 2.5 baths
  • 2,062 sqft
  • Built in 1978
Craig, Jess, Miles Dolinger
288 Blair St, Felton, CA 95018-9419
Single Family Residential
  • 3 beds
  • 1 bath
  • Lot: 5,532 sqft
  • Built in 1972
M Beacock, Dave L Blanchard
304 Blair St, Felton, CA 95018-9419
Single Family Residential
  • 3 beds
  • 1 bath
  • 1,125 sqft
  • Built in 1962
Catherine Marie Jensen, Saverio A Molino
306 Blair St, Felton, CA 95018-9419
Single Family
  • 2 beds
  • 1 bath
  • Lot: 7,492 sqft
Judy A Digirolamo, Katie A Digirolamo
350 Blair St, Felton, CA 95018-9419
Single Family Residential
  • 2 beds
  • 1 bath
  • Lot: 7,797 sqft
  • Built in 1969
Adria K Aslanian, Elizabeth Newton
377 Blair St, Felton, CA 95018-9419
Single Family Residential
  • 3 beds
  • 3 baths
  • Lot: 0.69 acres
  • Built in 1946
Evergreen Construction, Daniel Grizey
Joan B Forest
 

FAQ about the house at 361 Blair St, Felton, CA


NOTICE: You may not use SpamRoom or the information it provides to make decisions about employment, credit, housing or any other purpose that would require Fair Credit Reporting Act (FCRA) compliance. SpamRoom is not a Consumer Reporting Agency (CRA) as defined by the FCRA and does not provide consumer reports.