261 Walnut St Brookline, MA 02445 / 6729

(UPDATED: 09/04/2025)
Property Report

Information about property on 261 Walnut St, Brookline MA, 02445-6729. Find out owner contacts, building history, price, neighborhood at Homemetry Address Directory.

Units

Property details of units in this apartment building

#3

$5,400
For Rent
  • 1,470 sqft
  • 4 beds
  • 2 baths
(Updated: 06/13/2024)

#2

  • 1,470 sqft
  • 4 beds
  • 2 baths

#D3

  • 3 beds
  • 1 bath

Property Details

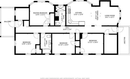
This near forty-five hundred square feet property was built in 1912 on 0,08 acres and it offers nine bedrooms and three bathrooms.

Facts

  • Built in 1912
  • Lot size 3,600 sqft
  • Floor size 4,473 sqft
  • Rooms 18
  • Bedrooms 9
  • Stories 3
  • Basement Unfinished basement
  • Heating & Cooling
  • Heat type Oil
  • Interior Home Features
  • Flooring Hardwood
  • Exterior Home Features
  • Exterior material Wood
  • Roof type Slate

Misc

  • Units 3

Listing info

  • Last sold Aug 2007 for $1,050,000

Features

  • Attic
  • Deck
  • Double Pane/Storm Windows
  • Fenced Yard
  • Lawn

Householders and Tenants for 261 Walnut St, Brookline MA

Possible residents contact details

Person Name Phone Number Additional Info
Carolyn E Bohlmann Apt # 3
Daisy Diaz Age: 47 Apt # 2
Residential status:
Renter
Diana C Pappastergion Age: 77
617-277-****
Diana C Valentine Age: 77
617-738-****
Helen F Pappastergion Age: 108
617-277-****
Jeff Tsao
John E Pappastergion Age: 104
617-277-****
Jon Bohlmann Age: 62
Jonathan Bohlmann Apt # 3
Residential status:
Renter
Job:
Machine Operators, Assemblers, and Inspectors Occupations
Jordana S Kaplow Apt # 3
Lauren Protentis Age: 41
Job:
Professional/Technical
Mackie Coard Apt # 2
Residential status:
Renter
Michael S Schrader Age: 40

Units - Who lives at 261 Walnut St, Brookline MA

#34 beds, 2 baths, 1,470 sqft02445-6734
#24 beds, 2 baths, 1,470 sqft02445-6734
#D33 beds, 1 bath 02445-6729

Where is 261 Walnut St, Brookline MA located on map?

Market Activities

To date, we have no information about market activities in 2025
Jun 2024 Listed for rent
261 Walnut St #3
Price history :
  • Townhouse
  • 1,470 sqft
  • 4 beds
  • 2 baths
Jun 2023 Recent Rent
261 Walnut St #2
Price history :
  • Townhouse
  • 1,470 sqft
  • 4 beds
  • 2 baths
Jun 2022 Sold
261 Walnut St
Price history :
  • Multi-Family
  • 4,356 sqft
  • 12 beds
  • 6 baths
Feb 2022 Sold
261 Walnut St
Price history :
  • Multi-Family
  • 4,356 sqft
  • 12 beds
  • 6 baths
Nov 2016 Recent Rent
261 Walnut St #D3
Price history :
  • 3 beds
  • 1 bath

ID: 2186301 Location: Walnut St., BrooklineRent: $2400 / Month Broker Fee: One Month Available...

View more

Walnut St Fire Incident History

To date, we have no information about fire incidents in 2025
06 Aug 2019 Building fires
Property Use —
1 or 2 family dwelling
Area of Origin —
Bedroom - < 5 persons; included are jail or prison
Heat Source —
Candle
08 Oct 2012 Building fires
Property Use —
1 or 2 family dwelling
Area of Origin —
Function area, other
03 Aug 2003 Building fires
Property Use —
1 or 2 family dwelling
Area of Origin —
Egress/exit, other
First Ignition —
Light vegetation - not crop, including grass
Heat Source —
Arcing

Walnut St Incidents registered in FEMA
(Federal Emergency Management Agency)

To date, we have no information about incidents registered in FEMA in 2025
06 Dec 2015 Cooking fire, confined to container
Property Use —
1 or 2 family dwelling
14 Nov 2015 Cooking fire, confined to container
Property Use —
Multifamily dwellings
14 Nov 2015 Gas leak (natural gas or LPG)
Property Use —
Residential street, road or residential driveway
05 Nov 2015 Cooking fire, confined to container
Property Use —
Multifamily dwellings

View more

Walnut St Crime Incidents History

To date, we have no information about crime incidents in 2025
03 Aug 2017 Proactive Policing
1 Block Walnut St, Brookline MA
Case Number —
2017-0003541
Description —
RESISTING ARREST
30 Jul 2017 Unknown
300 Block Walnut St, Brookline MA
Case Number —
2017-0003462
Description —
LARC-OTHER $200+
21 Jun 2017 Unknown
200 Block Walnut St, Brookline MA
Case Number —
2017-0002802
Description —
B&E&L OF MOTOR VEHICLE
17 May 2017 Property Crime
Walnut St, Brookline MA
Case Number —
2017-0002205
Description —
FOUND PROPERTY

View more

Properties Nearby

Street AddressResidens/Landlords
 

FAQ about the house at 261 Walnut St, Brookline, MA


NOTICE: You may not use SpamRoom or the information it provides to make decisions about employment, credit, housing or any other purpose that would require Fair Credit Reporting Act (FCRA) compliance. SpamRoom is not a Consumer Reporting Agency (CRA) as defined by the FCRA and does not provide consumer reports.