1711 47th Ave Hollywood, FL 33021 / 4121

(UPDATED: 09/07/2023)
Sold Jul 2021
$556,000
Property Report

Information about property on 1711 47th Ave, Hollywood FL, 33021-4121. Find out owner contacts, building history, price, neighborhood at Homemetry Address Directory.

Units

Property details of units in this apartment building

#1711

$4,500
For Rent
  • 1,550 sqft
  • 3 beds
  • 2 baths
(Updated: 09/07/2023)

Property Details

A single-family estate at 1711 47th Ave, Hollywood, FL.

Facts

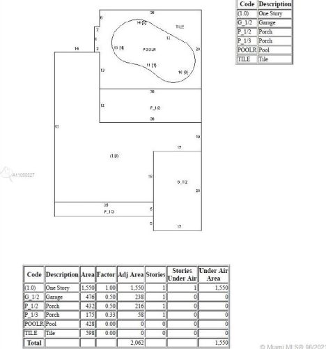
  • Built in 1964
  • Lot size 8,966 sqft
  • Pool Pool (yes)
  • Building 1
  • Bedrooms 3
  • Stories 1 story
  • Last remodel year 1965
  • Foundation Slab
  • Air conditioning Central
  • Exterior Home Features
  • Exterior material Cement concrete
  • Roof type Tile
  • Parking & Garage
  • Parking Garage
  • Parking spaces 2

Listing info

  • Last sold Jul 1970 for $42,500

Householders and Tenants for 1711 47th Ave, Hollywood FL

Possible residents contact details

Person Name Phone Number Additional Info
Frances Taylor
305-966-****
Residential status:
Homeowner
Job:
Service Occupations
Francine Taylor Age: 102
954-966-****
Residential status:
Homeowner
Francis Taylor Age: 102
305-966-****
Residential status:
Homeowner

Possible Businesses

Organization Phone Number Additional Info
L & F MAINTENANCE, INC
Type of Business:
Florida Profit Corporation
Inactive:
19930813

Units - Who lives at 1711 47th Ave, Hollywood FL

#17113 beds, 2 baths, 1,550 sqft 33021-4121

Cost estimate history

YearTaxAssessmentMarket
2014 $2,543 N/A N/A
2013 N/A $222,570 $222,570

Where is 1711 47th Ave, Hollywood FL located on map?

Market Activities

To date, we have no information about market activities in 2025
Sep 2023 Listed for rent
1711 47th Ave #1711
Price history :
  • Single Family
  • 1,550 sqft
  • 3 beds
  • 2 baths
Jul 2021 Sold
1711 47th Ave
Price history :
  • Single Family
  • 2,633 sqft
  • 3 beds
  • 2 baths
Jun 2021 Sold
1711 47th Ave
Price history :
  • Single Family
  • 2,633 sqft
  • 3 beds
  • 2 baths
Feb 2018 Sold
1711 47th Ave
Price history :
  • 2,125
  • 3 beds
  • 2 baths

View more

47th Ave Fire Incident History

To date, we have no information about fire incidents in 2025
26 Nov 2019 Passenger vehicle fire
Property Use —
Street or road in commercial area
13 Jul 2019 Passenger vehicle fire
Property Use —
Vehicle parking area
Area of Origin —
Engine area, running gear, wheel area
Heat Source —
Heat from other open flame or smoking materials
01 Dec 2017 Passenger vehicle fire
Property Use —
Residential street, road or residential driveway
Area of Origin —
Engine area, running gear, wheel area
Heat Source —
Radiated, conducted heat from operating equipment
03 Aug 2016 Building fires
Property Use —
1 or 2 family dwelling
Area of Origin —
Multiple areas
First Ignition —
Upholstered sofa, chair, vehicle seats

View more

47 Ave Incidents registered in FEMA
(Federal Emergency Management Agency)

To date, we have no information about incidents registered in FEMA in 2025
11 Nov 2015 Unauthorized burning
Property Use —
1 or 2 family dwelling
20 May 2015 Dumpster or other outside trash receptacle fire
Property Use —
Vehicle parking area
16 Feb 2015 Cooking fire, confined to container
Property Use —
1 or 2 family dwelling
03 Apr 2014 Cooking fire, confined to container
Property Use —
1 or 2 family dwelling

View more

Properties Nearby

Street Address Residens/Landlords
1305 47 Ave, Hollywood, FL 33021-4700
Single Family Residential
  • 4 beds
  • 2 baths
  • 2,372 sqft
  • Built in 1968
Joline Feinsilber, Lisa M Feinsilber
1411 47 Ave, Hollywood, FL 33021-4705
Single Family
  • 5 beds
  • 3 baths
  • Lot: 0.3 acres
  • Built in 1969
Diga International Sales, Inc, Jacquesr,LLC
1901 47 Ave, Hollywood, FL 33021-4125
Single Family Residential
  • 3 beds
  • 3 baths
  • Lot: 7,688 sqft
  • Built in 1972
Alexandre General Group Enterprises, Inc, Ani L'Dodi Productions, Corp
2000 47 Ave, Hollywood, FL 33021-4128
Single Family
  • 3 beds
  • 2 baths
  • 1,728 sqft
  • Built in 1962
Passante, Debra R Passante
2129 47 Ave, Hollywood, FL 33021-4149
Single Family Residential
  • 2 beds
  • 2 baths
  • 1,598 sqft
  • Built in 1963
POINT BLANK MEDICAL EQUIPMENT, INC, Frank J Fuchs
2201 47 Ave, Hollywood, FL 33021-4151
Single Family
  • 3 beds
  • 2 baths
  • 1,952 sqft
  • Built in 1963
Ralph R Ra, Linda A Ramser
3331 47 Ave, Hollywood, FL 33021-2310
Single Family Residential
  • 3 beds
  • 1,130 sqft
  • Built in 1957
Capo Construction I Inc, Prensa De Renta, Inc
3361 47 Ave, Hollywood, FL 33021-2310
Single Family Residential
  • 3 beds
  • 2 baths
  • Lot: 9,001 sqft
  • Built in 1971
Seth J Aaron, Lee Engel
3501 47 Ave, Hollywood, FL 33021-2210
Single Family Residential
  • 4 beds
  • 2 baths
  • Lot: 10,666 sqft
  • Built in 1972
Ellen H Hoenig, Leonard J Hoenig
3821 47 Ave, Hollywood, FL 33021-1729
Single Family Residential
  • 3 beds
  • 2 baths
  • 726 sqft
  • Built in 1956
IRON LAUDERDALE, Iron Mountain Record Mgmt Svc
 

FAQ about the house at 1711 47 Ave, Hollywood, FL


NOTICE: You may not use SpamRoom or the information it provides to make decisions about employment, credit, housing or any other purpose that would require Fair Credit Reporting Act (FCRA) compliance. SpamRoom is not a Consumer Reporting Agency (CRA) as defined by the FCRA and does not provide consumer reports.