15 Rockland St, Newton MA  02458-1410 exterior

15 Rockland St Newton, MA 02458 / 1410

(UPDATED: 08/10/2025)
Property Report

Information about property on 15 Rockland St, Newton MA, 02458-1410. Find out owner contacts, building history, price, neighborhood at Homemetry Address Directory.

Units

Property details of units in this apartment building

#17

  • 7,200 sqft
  • 3 beds
  • 3 baths
Multi-Family Home

Property Details

At 15 Rockland Street, Newton, MA placed a residence.

Facts

  • Built in 1890
  • Property use Two Family
  • Lot size 7,200 sqft
  • Effective area 2,912 sqft
  • Gross building area 3,393 sqft
  • Building type Residential
  • Rooms 6
  • Bedrooms 3
  • Stories 2
  • Exterior condition Average
  • Trim None
  • Foundation type Brick/Fldstone
  • Roof material Asphalt Shingl
  • Fuel type Gas
  • Frontage 80 feet
  • Basement area 962 sqft
  • Finished basement area 481 sqft
  • Shed area 96 sqft
  • Porch area 80 sqft
  • Heating & Cooling
  • Heat type Hot Water
  • Exterior Home Features
  • Exterior walls Vinyl Siding
  • Roof type Mansard

Features

  • Interior condition: Good

Householders and Tenants for 15 Rockland St, Newton MA

Possible residents contact details

Person Name Phone Number Additional Info
Geoff Kahl
617-744-****
Job:
Professional/Technical
John Lee Age: 74
617-480-****
Residential status:
Homeowner
Job:
Service Occupations
Kevin Lee
617-480-****
Residential status:
Homeowner
Job:
Service Occupations
Thong Ly
Tina Lee
617-480-****
Residential status:
Homeowner
Job:
Service Occupations
Wilson K Lee Age: 71
617-527-****
Residential status:
Homeowner
Job:
Service Occupations

Units - Who lives at 15 Rockland St, Newton MA

#17Multi-Family Home, 3 beds, 3 baths, 7,200 sqft 02458-1410
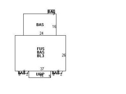
15 Rockland St, Newton MA  02458-1410 plot plan 15 Rockland St, Newton MA  02458-1410 floor plan 15 Rockland St, Newton MA  02458-1410 aerial view

Cost estimate history

YearAssessment
2016 $609,200
2015 $569,300
2014 $541,700
2013 $541,700
2012 $541,700
2011 $553,600
2010 $564,900
2009 $594,600
2008 $594,600
2007 $665,300
2006$645,900
2005$627,100
2004$389,500
2003$341,700
2002$341,700
2001$277,600
2000$253,500
1999$230,700
1998$202,200
1997$202,200
1996$192,600
1995$174,000
1994$183,200
1993$183,200
1992$194,400

Where is 15 Rockland St, Newton MA located on map?

Properties Nearby

Street AddressResidens/Landlords
8 Rockland St, Newton, MA 02458-1411
Two Family
  • 5 beds
  • 2 baths
  • 4,944 sqft
  • Built in 1929
Michael J Dillon, Susan Dillon
10 Rockland St, Newton, MA 02458-1411
Two Family
  • 5 beds
  • 2 baths
  • 4,944 sqft
  • Built in 1929
Cindy Q Hodgdon, Dani A Quintiliani
12 Rockland St, Newton, MA 02458-1411
Two Family
  • 4 beds
  • 4,740 sqft
  • Built in 1928
Elise Andrews, Nancy M Goon
14 Rockland St, Newton, MA 02458-1411
Two Family
  • 3 beds
  • 2.5 baths
  • 4,740 sqft
  • Built in 1928
DOLITKA MICHELE RAYMOND, Katherine A Dolitka
16 Rockland St, Newton, MA 02458-1411
Two Family
  • 4 beds
  • 3,612 sqft
  • Built in 1928
18 Rockland St, Newton, MA 02458-1411
Two Family
  • 4 beds
  • 4.5 baths
  • 3,612 sqft
  • Built in 1928
Diane L Cocuzzo, Jessica Cocuzzo
22 Rockland St, Newton, MA 02458-1411
Apartment
  • 5 beds
  • 2 baths
  • 2,200 sqft
  • Built in 1830
Sharon O Iagulli, Michele C Iagulli
24 Rockland St, Newton, MA 02458-1411
Multiple Occupancy
  • 5 beds
  • 4 baths
  • 1,784 sqft
  • Built in 1872
TREE OF LIFE TAI CHI CENTER, LLC, E R Granfort
35 Rockland St, Newton, MA 02458-1410
Single Family
  • 3 beds
  • 2.5 baths
  • 3,184 sqft
  • Built in 1993
Qing Zhao, Haijiang Lin
38 Rockland St, Newton, MA 02458-1411
Single Family
  • 3 beds
  • 2.5 baths
  • 1,512 sqft
  • Built in 1993
SHIN OI SAM &AL, TAM YU BIU &UX
 

FAQ about the house at 15 Rockland St, Newton, MA


NOTICE: You may not use SpamRoom or the information it provides to make decisions about employment, credit, housing or any other purpose that would require Fair Credit Reporting Act (FCRA) compliance. SpamRoom is not a Consumer Reporting Agency (CRA) as defined by the FCRA and does not provide consumer reports.