138 Lexington St, Newton MA  02466-1346 exterior

138 Lexington St Newton, MA 02466 / 1346

(UPDATED: 07/12/2025)
Property Report

Information about property on 138 Lexington St, Newton MA, 02466-1346. Find out owner contacts, building history, price, neighborhood at Homemetry Address Directory.

Units

Property details of units in this apartment building

#2

  • 1 bed
  • 1 bath

Property Details

This property with near twenty-five hundred square feet of effective area on 0,17 acres was erected in the forties.

Facts

  • Built in 1942
  • Property use Single Family
  • Lot size 7,505 sqft
  • Effective area 2,491 sqft
  • Building type Residential
  • Rooms 5
  • Bathrooms 2
  • Stories 1
  • Exterior condition Average
  • Trim None
  • Foundation type Slab
  • Roof material Asphalt Shingl
  • Fuel type Oil
  • Air conditioning Central
  • Frontage 70 feet
  • Basement area 899 sqft
  • Finished basement area 675 sqft
  • Shed area 64 sqft
  • Enclosed porch area 385 sqft
  • Attached garage area 308 sqft
  • Heating & Cooling
  • Heat type Hot Water
  • Exterior Home Features
  • Exterior walls Vinyl Siding
  • Roof type Gable

Householders and Tenants for 138 Lexington St, Newton MA

Possible residents contact details

Person Name Phone Number Additional Info
Dennis W Lajoie
Frank Gurgone
Josephine Gurgone
LAJOIE REVOCABLE TRUST
LAJOIE REVOCABLE TRUST /S TRS
LAJOIE WILFRED P LIFE EST
Mary B Lajoie Age: 112
617-244-****
Residential status:
Homeowner
Job:
Administrative Support Occupations, Including Clerical Occupations
Wilfred P Lajoie Age: 99
617-244-****
Residential status:
Homeowner
Job:
Professional/Technical

Units - Who lives at 138 Lexington St, Newton MA

#21 bed, 1 bath 02466-1346
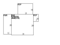
138 Lexington St, Newton MA  02466-1346 plot plan 138 Lexington St, Newton MA  02466-1346 floor plan 138 Lexington St, Newton MA  02466-1346 aerial view

Cost estimate history

YearAssessment
2016 $422,200
2015 $394,600
2014 $375,000
2013 $375,000
2012 $375,000
2011 $374,900
2010 $382,500
2009 $390,300
2008 $390,300
2007 $397,200
2006$385,600
2005$367,200
2004$336,100
2003$300,100
2002$300,100
2001$252,000
2000$230,100
1999$209,400
1998$189,500
1997$189,500
1996$180,500
1995$137,600
1994$137,600
1993$137,600
1992$156,900

Where is 138 Lexington St, Newton MA located on map?

Market Activities

To date, we have no information about market activities in 2025
Apr 2023 Sold
138 Lexington St
Price history :
  • Single Family
  • 5,162 sqft
  • 5 beds
  • 5 baths
Feb 2023 Sold
138 Lexington St
Price history :
  • Single Family
  • 5,162 sqft
  • 5 beds
  • 5 baths
Sep 2016 Recent Rent
138 Lexington St #2
Price history :
  • 1 bed
  • 1 bath

Sunny and Spacious 1BR Apartment includes Heat/hot water, A/C, off street Parking, Laundry,...

Sep 2016 Recent Rent
138 Lexington St #2
Price history :
  • 1 bed
  • 1 bath

Sunny and Spacious 1BR Apartment includes Heat/hot water, A/C, off street Parking, Laundry,...

View more

Building Permits

To date, we have no information about building permits in 2025
Nov 14, 2012
Description: Strip existing shingles from roof (2 layers) and install new shingles. no structural work
  • Valuation: $752,600
  • Fee: $139.98 paid to City of Newton, Massachusetts
  • Parcel #: 44035 0048
  • Permit #: 12110434

Lexington St Fire Incident History

To date, we have no information about fire incidents in 2025
15 May 2018 Grass fire
Property Use —
Residential street, road or residential driveway
Area of Origin —
Outside area, other
First Ignition —
Chips, including wood chips
Heat Source —
Cigarette
04 Jul 2016 Brush, or brush and grass mixture fire
Property Use —
Open land or field
Area of Origin —
Outside area, other
First Ignition —
Heavy vegetation - not crop, including trees
Heat Source —
Explosive, fireworks, other
29 Apr 2013 Building fires
Property Use —
1 or 2 family dwelling
Area of Origin —
Cooking area, kitchen
First Ignition —
Cooking materials, including edible materials
Heat Source —
Heat from direct flame, convection currents
01 Apr 2013 Building fires
Property Use —
Multifamily dwellings
Area of Origin —
Cooking area, kitchen
First Ignition —
Item First Ignited, Other
Heat Source —
Heat from powered equipment, other

View more

Lexington St Incidents registered in FEMA
(Federal Emergency Management Agency)

To date, we have no information about incidents registered in FEMA in 2025
11 Oct 2014 Vehicle accident, general cleanup
Property Use —
Street, other
11 Jul 2014 Cooking fire, confined to container
Property Use —
Multifamily dwellings
29 Jun 2014 Gas leak (natural gas or LPG)
Property Use —
Business office
21 Nov 2013 Vehicle accident, general cleanup
Property Use —
Street, other

View more

Properties Nearby

Street AddressResidens/Landlords
12 Lexington St, Newton, MA 02465-1030
Two Family
  • 4 beds
  • 2,830 sqft
  • Built in 1900
LAWRENCELEXINGTON3 Inc, Michael S Acors
15 Lexington St, Newton, MA 02465-1029
Three Family
  • 4 beds
  • 4,734 sqft
  • Built in 1910
PICARIELLO ANTHONY SAMUEL &AL TRS, PICARIELLO DONNA JANET &AL TRS
116 Lexington St, Newton, MA 02466-1346
Single Family
  • 3 beds
  • 1 bath
  • 3,005 sqft
  • Built in 1958
Kristin M Mariano, Ottavio Mariano
124 Lexington St, Newton, MA 02466-1346
Two Family
  • 3 beds
  • 2 baths
  • 3,710 sqft
  • Built in 1955
FLYNN KEVIN J SR &AL, Sandra L Flynn
Neccesary Evils, Proper Management and Consulting, LLC
134 Lexington St, Newton, MA 02466-1346
Single Family
  • 4 beds
  • 3 baths
  • 3,609 sqft
  • Built in 1903
Maria Arcuri, Vincent J Arcuri
American Red Cross, B&C Cab Inc
148 Lexington St, Newton, MA 02466-1307
Single Family
  • 3 beds
  • 1.5 baths
  • 2,484 sqft
  • Built in 1935
Michelle A Barry, Michael J Barry
Mohamed Ahmed, David F Albertini
158 Lexington St, Newton, MA 02466-1307
Single Family
  • 3 beds
  • 1 bath
  • 2,308 sqft
  • Built in 1920
Vincent L Antonellis, Charles A Garabedian
 

FAQ about the house at 138 Lexington St, Newton, MA


NOTICE: You may not use SpamRoom or the information it provides to make decisions about employment, credit, housing or any other purpose that would require Fair Credit Reporting Act (FCRA) compliance. SpamRoom is not a Consumer Reporting Agency (CRA) as defined by the FCRA and does not provide consumer reports.