Residence for Single Family

(UPDATED: 08/17/2025)
  • 2 Beds
  • 1 Baths
  • 0.56 acres
Sold Apr 2024
$218,000
Property Report

Information about property on 9327 Hamline Ave, Lino Lakes MN, 55014-2801. Find out owner contacts, building history, price, neighborhood at Homemetry Address Directory.

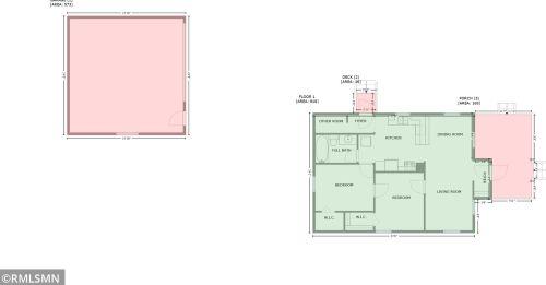
Property Details

Facts

  • Built in 1947
  • Lot size 0,56 acres
  • Building 1
  • Construction Wood
  • Rooms 5
  • Bedrooms 2
  • Stories 1 story with basement
  • Foundation Crawl/Raised
  • Heating & Cooling
  • Heat type Electric
  • Exterior Home Features
  • Exterior walls Siding (Alum/Vinyl)
  • Roof type Composition Shingle
  • Parking & Garage
  • Parking Garage

Householders and Tenants for 9327 Hamline Ave, Lino Lakes MN

Possible residents contact details

Person Name Phone Number Additional Info
Aimee Candella
Bernard E Pidgeon Age: 78
Daniel Candella
763-432-****
Mitch J Malone Age: 61
763-205-****
Mitchell Malone
763-205-****
Theresa Hauglid
763-780-****

Purchase History

DateEventPriceSourceAgents
03/14/2013 Sold $109,500 Agent Submission Sandy Erickson
03/08/2013 Sold $109,500 Agent Submission Sandy Erickson
02/05/2008 Sold $114,500 Public records
11/10/1998 Sold $91,000 Public records

PURCHASE HISTORY 9327 Hamline Ave, Lino Lakes MN

11/10/199803/08/2013Date$0$10k$20k$30k$40k$50k$60k$70k$80k$90k$100k$110k$120kPrices

Cost estimate history

YearTaxAssessmentMarket
2014 $2,199 $116,800 $133,700

Where is 9327 Hamline Ave, Lino Lakes MN located on map?

Market Activities

To date, we have no information about market activities in 2025
Apr 2024 Sold
9327 Hamline Ave
Price history :
  • Single Family
  • 796 sqft
  • 2 beds
  • 1 bath
Mar 2024 Sold
9327 Hamline Ave
Price history :
  • Single Family
  • 796 sqft
  • 2 beds
  • 1 bath

View more

Hamline Ave Fire Incident History

To date, we have no information about fire incidents in 2025
01 Jun 2009 Natural vegetation fire, other
Property Use —
1 or 2 family dwelling
Area of Origin —
Wildland, woods
First Ignition —
Organic materials, other
Heat Source —
Hot or smoldering object, other
03 Aug 2003 Grass fire
Property Use —
Open land or field
Area of Origin —
Open area - outside; included are farmland, field
13 Oct 2000 Natural vegetation fire, other
Property Use —
Open land or field
Area of Origin —
Open area - outside; included are farmland, field

Hamline Ave Incidents registered in FEMA
(Federal Emergency Management Agency)

To date, we have no information about incidents registered in FEMA in 2025
18 Mar 2012 Outside rubbish fire, other
Property Use —
1 or 2 family dwelling
31 May 2009 Forest, woods or wildland fire
04 Jun 2002 Emergency medical service, other (conversion only)
Property Use —
1 or 2 family dwelling
13 Jul 2001 Overpressure rupture from air or gas, other
Property Use —
1 or 2 family dwelling

View more

Properties Nearby

Street AddressResidens/Landlords
9217 Hamline Ave, Lino Lakes, MN 55014-2812
Single Family Residential
  • 4 beds
  • 2 baths
  • Lot: 0.84 acres
  • Built in 1990
Nancy Benson, Roland Benson
9233 Hamline Ave, Lino Lakes, MN 55014-2812
Single Family Residential
  • 3 beds
  • 2 baths
  • Lot: 0.84 acres
  • Built in 1990
Richard J Moe, Rosemary A Moe
9251 Hamline Ave, Lino Lakes, MN 55014-2812
Single Family Residential
  • 4 beds
  • 2 baths
  • Lot: 0.84 acres
  • Built in 1990
Anthony B Graham, Bill B Graham
9307 Hamline Ave, Lino Lakes, MN 55014-2801
Single-Family Home
  • 4 beds
  • 2 baths
  • Lot: 0.61 acres
  • Built in 1965
Deborah A Hogquist, Susan K Jacovitch
9317 Hamline Ave, Lino Lakes, MN 55014-2801
Single-Family Home
  • 6 beds
  • 2 baths
  • Lot: 0.49 acres
  • Built in 1965
Anthony J Bollman, Trista L Fisher
9335 Hamline Ave, Lino Lakes, MN 55014-2801
Single-Family Home
  • 6 beds
  • 4 baths
  • Lot: 0.38 acres
  • Built in 1986
Kathy Bright, Jere Erickson
9337 Hamline Ave, Lino Lakes, MN 55014-2801
Single-Family Home
  • 6 beds
  • 4 baths
  • Lot: 0.38 acres
  • Built in 1980
Andrew And Sons L. L. C, Sherry M Burdick
 

FAQ about the house at 9327 Hamline Ave, Lino Lakes, MN


NOTICE: You may not use SpamRoom or the information it provides to make decisions about employment, credit, housing or any other purpose that would require Fair Credit Reporting Act (FCRA) compliance. SpamRoom is not a Consumer Reporting Agency (CRA) as defined by the FCRA and does not provide consumer reports.