72 Pond St, Newton MA  02458-1397 exterior

72 Pond St Newton, MA 02458 / 1397

Residence for Single Family

(UPDATED: 09/22/2025)
  • 8 Beds
  • 2 Baths
  • 5.304 square feet
Property Report

Information about property on 72 Pond St, Newton MA, 02458-1397. Find out owner contacts, building history, price, neighborhood at Homemetry Address Directory.

Property Details

A property at 72 Pond Street, Newton, Massachusetts.

Facts

  • Built in 1921
  • Property use Two Family
  • Lot size 1,755 sqft
  • Effective area 5,002 sqft
  • Gross building area 5,304 sqft
  • Building type Residential
  • Rooms 14
  • Bedrooms 8
  • Bathrooms 2
  • Stories 2,75
  • Exterior condition Average
  • Trim None
  • Foundation type Concrete
  • Roof material Asphalt Shingl
  • Fuel type Oil
  • Basement area 1,209 sqft
  • Porch area 378 sqft
  • Enclosed porch area 90 sqft
  • Heating & Cooling
  • Heat type Steam
  • Exterior Home Features
  • Exterior walls Vinyl Siding
  • Roof type Gable

Features

  • Interior condition: Good
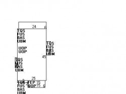
72 Pond St, Newton MA  02458-1397 plot plan 72 Pond St, Newton MA  02458-1397 floor plan 72 Pond St, Newton MA  02458-1397 aerial view

Cost estimate history

YearAssessment
2016 $172,700
2015 $161,400
2014 $153,500
2013 $153,500
2012 $153,500
2011 $155,000
2010 $158,200
2009 $166,500
2008 $166,500
2007 $160,400
2006$155,700
2005$151,200
2004$118,100
2003$103,600
2002$103,600
2001$90,100
2000$82,300
1999$74,900
1998$4,500
1997$4,500
1996$4,500
1995$4,500
1994$4,500
1993$4,500
1992$4,700

Where is 72 Pond St, Newton MA located on map?

Properties Nearby

Street AddressResidens/Landlords
 

FAQ about the house at 72 Pond St, Newton, MA


NOTICE: You may not use SpamRoom or the information it provides to make decisions about employment, credit, housing or any other purpose that would require Fair Credit Reporting Act (FCRA) compliance. SpamRoom is not a Consumer Reporting Agency (CRA) as defined by the FCRA and does not provide consumer reports.