649 Ergle St Graniteville, SC 29829 / 3536

  • 2 Beds
  • 3 Baths
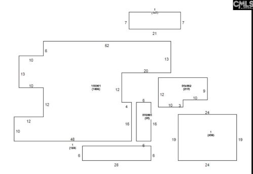
  • 1.886 square feet
Sold Dec 2022
$135,000
Property Report

Information about property on 649 Ergle St, Graniteville SC, 29829-3536. Find out owner contacts, building history, price, neighborhood at Homemetry Address Directory.

Property Details

The home is situated at 649 Ergle St, Graniteville, SC.

Householders and Tenants for 649 Ergle St, Graniteville SC

Possible residents contact details

Person Name Phone Number Additional Info
Amanda W Weathersbee Age: 40
803-663-****
Paul M Posey
803-663-****
Residential status:
Renter
Job:
Construction and Extraction Occupations
Robert D Weathersbee
803-663-****

Where is 649 Ergle St, Graniteville SC located on map?

Market Activities

To date, we have no information about market activities in 2025
Dec 2022 Sold
649 Ergle St
Price history :
  • Single Family
  • 1,886 sqft
  • 2 beds
  • 3 baths
Nov 2022 Sold
649 Ergle St
Price history :
  • Single Family
  • 1,886 sqft
  • 2 beds
  • 3 baths

View more

Ergle St Fire Incident History

To date, we have no information about fire incidents in 2025
25 Nov 2008 Building fires
Property Use —
1 or 2 family dwelling
Area of Origin —
Common room, den, family room, living room, lounge
First Ignition —
Upholstered sofa, chair, vehicle seats
Heat Source —
Radiated, conducted heat from operating equipment

Ergle St Incidents registered in FEMA
(Federal Emergency Management Agency)

To date, we have no information about incidents registered in FEMA in 2025
02 Mar 2014 Electrical wiring/equipment problem, other
Property Use —
1 or 2 family dwelling
08 May 2012 Power line down
Property Use —
Residential street, road or residential driveway
21 Feb 2010 Gas leak (natural gas or LPG)
Property Use —
1 or 2 family dwelling

Properties Nearby

Street AddressResidens/Landlords
653 Ergle St, Graniteville, SC 29829-3536
  • 3 beds
  • 3 baths
  • Lot: 1,968 sqft
Helen Long, B Sleasman
Phil D Robertson
FLOOR RESTORE, LLC, S Debeaugrine
 

FAQ about the house at 649 Ergle St, Graniteville, SC


NOTICE: You may not use SpamRoom or the information it provides to make decisions about employment, credit, housing or any other purpose that would require Fair Credit Reporting Act (FCRA) compliance. SpamRoom is not a Consumer Reporting Agency (CRA) as defined by the FCRA and does not provide consumer reports.