607 Dayton St Madison, WI 53703 / 2335

Residence for Single Family

(UPDATED: 08/06/2025)
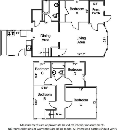
  • 5 Beds
  • 2 Baths
  • 2.178 square feet
Sold Dec 2023
$262,000
Property Report

Information about property on 607 Dayton St, Madison WI, 53703-2335. Find out owner contacts, building history, price, neighborhood at Homemetry Address Directory.

Property Details

As is shown in our records this property is situated at 607 Dayton Street, Madison, WI.

Facts

  • Built in 1894
  • Lot size 2,178 sqft
  • Rooms 10
  • Bedrooms 5
  • Bathrooms 2
  • Stories 2 story with basement
  • Last remodel year 1960
  • Style Traditional
  • Basement Full Basement
  • Foundation Stone
  • Exterior Home Features
  • Exterior walls Siding (Alum/Vinyl)
  • Roof type Asphalt

Misc

  • Units 1

Listing info

  • Last sold Feb 2004 for $135,000

Features

  • Construction quality: 4.0

Householders and Tenants for 607 Dayton St, Madison WI

Possible residents contact details

Person Name Phone Number Additional Info
Aaron Williams
608-442-****
Brian F Cislak
Gordon Chase Starr Age: 62
608-258-****
Jay H Gierhart
Sybil Wilkins Age: 63
608-274-****
Vincent R Stepter Age: 59

Cost estimate history

YearTaxAssessmentMarket
2013 N/A $143,100 N/A
2011 $3,322 N/A N/A

Where is 607 Dayton St, Madison WI located on map?

Market Activities

To date, we have no information about market activities in 2025
Dec 2023 Sold
607 Dayton St
Price history :
  • Multi-Family
Aug 2023 Sold
607 Dayton St
Price history :
  • Multi-Family

View more

Dayton St Fire Incident History

To date, we have no information about fire incidents in 2025
25 Jul 2017 Fires in structures other than in a building
Property Use —
Multifamily dwellings
Area of Origin —
Other
First Ignition —
Upholstered sofa, chair, vehicle seats
Heat Source —
Cigarette
10 Jul 2017 Cooking fire, confined to container
Property Use —
Multifamily dwellings
Area of Origin —
Cooking area, kitchen
First Ignition —
Cooking materials, including edible materials
Heat Source —
Radiated, conducted heat from operating equipment
13 Mar 2017 Fires in structures other than in a building
Property Use —
Outbuilding or shed
Area of Origin —
Exterior, exposed surface
First Ignition —
Exterior wall covering or finish
Heat Source —
Hot or smoldering object, other
20 Nov 2016 Building fires
Property Use —
Restaurant or cafeteria
Area of Origin —
Bathroom, checkroom, lavatory, locker room
First Ignition —
Box, carton, bag, basket, barrel
Heat Source —
Heat source: other

View more

Dayton St Incidents registered in FEMA
(Federal Emergency Management Agency)

To date, we have no information about incidents registered in FEMA in 2025
28 Dec 2015 Arcing, shorted electrical equipment
Property Use —
Street, other
19 Sep 2015 Overheated motor
Property Use —
Adult education center, college classroom
06 Jul 2015 Gas leak (natural gas or LPG)
Property Use —
Multifamily dwellings
28 May 2015 Gas leak (natural gas or LPG)
Property Use —
1 or 2 family dwelling

View more

Properties Nearby

Street AddressResidens/Landlords
533 Dayton St, Madison, WI 53703-1907
Single Family
  • 8 beds
  • 3 baths
  • 2,314 sqft
  • Built in 1902
Natasha L Antonakis, Patrick D Austermuehle
535 Dayton St, Madison, WI 53703-1907
Single Family
  • 7 beds
  • 2 baths
  • 2,246 sqft
  • Built in 1899
Andrew J Aiello, Peter K Antaramian
542 Dayton St, Madison, WI 53703-1968
Single Family
  • 3 beds
  • 3 baths
  • 1,171 sqft
  • Built in 1874
Rachel Bachhuber, Jamie Baer
544 Dayton St, Madison, WI 53703-1968
Apartment
  • 3 beds
  • 2 baths
  • 2,130 sqft
  • Built in 1916
Jill M Beranek, Ozzie Castillo
545 Dayton St, Madison, WI 53703-1995
  • Madison Metro School District
City of Madison, Drug & Alcohol Rehab Madison
617 Dayton St, Madison, WI 53703-4608
Condominium (Residential)
  • 2 beds
  • 1 bath
  • Lot: 935 sqft
  • Built in 2000
J A Hodges, Northern Metal Roofing Company Incorporated
625 Dayton St, Madison, WI 53703-2335
Condominium (Residential)
  • 2 beds
  • 2 baths
  • Lot: 1,151 sqft
  • Built in 2000
NATE THEIS, LLC, Amy J Blasen
627 Dayton St, Madison, WI 53703-2335
Condominium (Residential)
  • 1 bed
  • 1 bath
  • Lot: 824 sqft
  • Built in 2000
Justin W Dorow, Andrew S Johnson
629 Dayton St, Madison, WI 53703-2335
Condominium (Residential)
  • 2 beds
  • 1 bath
  • Lot: 845 sqft
  • Built in 2000
Kate L Kruger
633 Dayton St, Madison, WI 53703-2335
Condominium (Residential)
  • 1 bed
  • 1 bath
  • Lot: 713 sqft
  • Built in 2000
Claire L Draeger
 

FAQ about the house at 607 Dayton St, Madison, WI


NOTICE: You may not use SpamRoom or the information it provides to make decisions about employment, credit, housing or any other purpose that would require Fair Credit Reporting Act (FCRA) compliance. SpamRoom is not a Consumer Reporting Agency (CRA) as defined by the FCRA and does not provide consumer reports.