45 Deforest Rd, Newton MA  02462-1133 exterior

45 Deforest Rd Newton, MA 02462 / 1133

Residence for Single Family

(UPDATED: 09/03/2025)
  • 3 Beds
  • 2 Baths
  • 3.628 square feet
Property Report

Information about property on 45 Deforest Rd, Newton MA, 02462-1133. Find out owner contacts, building history, price, neighborhood at Homemetry Address Directory.

Property Details

As is shown in our records this property is based at 45 Deforest Rd, Newton, MA.

Facts

  • Built in 1951
  • Property use Single Family
  • Lot size 14,000 sqft
  • Effective area 3,436 sqft
  • Gross building area 3,628 sqft
  • Building type Residential
  • Rooms 8
  • Bedrooms 3
  • Stories 2
  • Exterior condition Average
  • Trim None
  • Foundation type Conc Block
  • Roof material Asphalt Shingl
  • Fuel type Oil
  • Air conditioning Central
  • Fireplaces 2
  • Frontage 140 feet
  • Basement area 962 sqft
  • Shed area 80 sqft
  • Porch area 126 sqft
  • Deck area 96 sqft
  • Basement garages 1
  • Carport area 240 sqft
  • Heating & Cooling
  • Heat type Forced Air-Duc
  • Exterior Home Features
  • Exterior walls Vinyl Siding
  • Roof type Gable

Features

  • Kitchen quality: Below Average

Householders and Tenants for 45 Deforest Rd, Newton MA

Possible residents contact details

Person Name Phone Number Additional Info
Alana B Goodwin Age: 77
617-558-****
Residential status:
Renter
Job:
Healthcare Support Occupations
Allan C Sharpe Age: 108
James F Goodwin Age: 83
617-558-****
Residential status:
Renter
Job:
Healthcare Support Occupations
Olive C Pe
Olive C Sharpe Age: 105
617-244-****
Quanli Yang
Xuesong Gu Age: 57
Residential status:
Homeowner
Job:
Professional/Technical

Businesses

Organization Phone Number Additional Info
EDA EMA LLC
Type of Business:
Domestic Limited Liability Company (LLC)
MEDYX PHARMACEUTICAL CORP
Type of Business:
Domestic Profit Corporation
NEW BOSLAND, LLC
Type of Business:
Domestic Limited Liability Company (LLC)

Possible Businesses

Organization Phone Number Additional Info
Genedot Corp
Industry:
Nonclassifiable Establishments
Type of Business:
Domestic Profit Corporation
Inactive:
20140126
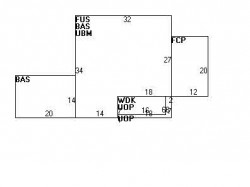
45 Deforest Rd, Newton MA  02462-1133 plot plan 45 Deforest Rd, Newton MA  02462-1133 floor plan 45 Deforest Rd, Newton MA  02462-1133 aerial view

Purchase History

DateEventPriceSourceAgents
04/01/2009 Sold $415,000 Public records

Cost estimate history

YearAssessment
2016 $547,500
2015 $511,700
2014 $486,700
2013 $486,700
2012 $486,700
2011 $495,400
2010 $505,500
2009 $515,800
2008 $515,800
2007 $488,400
2006$474,200
2005$443,200
2004$418,100
2003$373,300
2002$373,300
2001$359,100
2000$327,900
1999$298,400
1998$286,900
1997$270,700
1996$257,800
1995$245,000
1994$233,300
1993$233,300
1992$235,800

Where is 45 Deforest Rd, Newton MA located on map?

Properties Nearby

Street AddressResidens/Landlords
5 Deforest Rd, Newton, MA 02462-1110
Single Family
  • 3 beds
  • 3 baths
  • 3,492 sqft
  • Built in 1989
Ronit A Inbar, Michael Inbar
8 Deforest Rd, Newton, MA 02462-1111
Single Family
  • 2 beds
  • 2 baths
  • 2,907 sqft
  • Built in 1955
Wee L Ooi, Rita D Henry
 

FAQ about the house at 45 Deforest Rd, Newton, MA


NOTICE: You may not use SpamRoom or the information it provides to make decisions about employment, credit, housing or any other purpose that would require Fair Credit Reporting Act (FCRA) compliance. SpamRoom is not a Consumer Reporting Agency (CRA) as defined by the FCRA and does not provide consumer reports.