36 Fairfield St, Newton MA  02460-2126 exterior

36 Fairfield St Newton, MA 02460 / 2126

Residence for Single Family

(UPDATED: 07/05/2025)
  • 4 Beds
  • 2 Baths
  • 2.859 square feet
Property Report

Information about property on 36 Fairfield St, Newton MA, 02460-2126. Find out owner contacts, building history, price, neighborhood at Homemetry Address Directory.

Property Details

As is shown in our records this property is situated at 36 Fairfield Street, Newton, MA.

Facts

  • Built in 1925
  • Property use Single Family
  • Lot size 8,060 sqft
  • Effective area 2,491 sqft
  • Gross building area 2,859 sqft
  • Building type Residential
  • Rooms 7
  • Bedrooms 3
  • Stories 2
  • Exterior condition Average
  • Trim None
  • Foundation type Concrete
  • Roof material Asphalt Shingl
  • Fuel type Gas
  • Frontage 80 feet
  • Basement area 945 sqft
  • Finished basement area 368 sqft
  • Porch area 233 sqft
  • Basement garages 1
  • Heating & Cooling
  • Heat type Hot Water
  • Exterior Home Features
  • Exterior walls Wood Shingle
  • Roof type Gable

Features

  • Kitchen quality: Above Average

Householders and Tenants for 36 Fairfield St, Newton MA

Possible residents contact details

Person Name Phone Number Additional Info
Daphne Psacharopoulos Age: 53
617-795-****
Residential status:
Homeowner
Frank M Perna Age: 62
617-558-****
Mary Starr Green Age: 64
Nicholas P Morgan Age: 55
617-795-****
Residential status:
Homeowner
PETERSON WILLENA H /S EXOR
Robert B Green
STEWART REED F EXOR
Stacie S Perna Age: 60
617-558-****
Sylvia V Perna Age: 100
617-558-****
Valerie T Wong
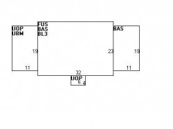
36 Fairfield St, Newton MA  02460-2126 plot plan 36 Fairfield St, Newton MA  02460-2126 floor plan 36 Fairfield St, Newton MA  02460-2126 aerial view

Purchase History

DateEventPriceSourceAgents
12/01/2003 Sold $485,000 Public records
07/08/2002 Sold $625,000 Public records
01/31/2001 Sold $495,000 Public records

PURCHASE HISTORY 36 Fairfield St, Newton MA

01/31/200112/01/2003Date$0$100k$200k$300k$400k$500k$600k$700kPrices

Cost estimate history

YearAssessment
2016 $694,600
2015 $649,200
2014 $622,100
2013 $622,100
2012 $622,100
2011 $618,800
2010 $631,400
2009 $644,300
2008 $644,300
2007 $671,100
2006$651,600
2005$620,600
2004$568,500
2003$507,600
2002$481,300
2001$410,100
2000$374,500
1999$340,800
1998$293,000
1997$272,600
1996$259,600
1995$208,300
1994$208,300
1993$208,300
1992$213,600

Where is 36 Fairfield St, Newton MA located on map?

Properties Nearby

Street AddressResidens/Landlords
5 Fairfield St, Newton, MA 02460-2107
Single Family
  • 3 beds
  • 1.5 baths
  • 3,531 sqft
  • Built in 1928
Ann M Oconnell, James C Oconnell
 

FAQ about the house at 36 Fairfield St, Newton, MA


NOTICE: You may not use SpamRoom or the information it provides to make decisions about employment, credit, housing or any other purpose that would require Fair Credit Reporting Act (FCRA) compliance. SpamRoom is not a Consumer Reporting Agency (CRA) as defined by the FCRA and does not provide consumer reports.