323 Monterey Blvd Hermosa Beach, CA 90254 / 5149

Residence for Single Family

(UPDATED: 09/02/2025)
  • 8 Beds
  • 6 Baths
  • 3.017 square feet
Sold Oct 2023
$3,000,000
Property Report

Information about property on 323 Monterey Blvd, Hermosa Beach CA, 90254-5149. Find out owner contacts, building history, price, neighborhood at Homemetry Address Directory.

Property Details

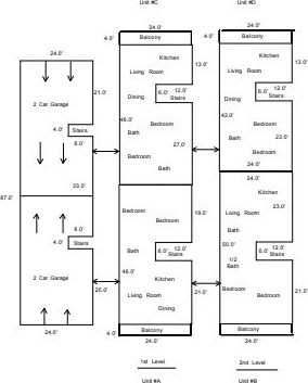
A multi-family home at 323 Monterey Boulevard, Hermosa Beach, California.

Facts

  • Built in 1972
  • Lot size 3,017 sqft
  • Building 1
  • Bedrooms 8
  • Bathrooms 6

Misc

  • Units 4

Purchase History

DateEventPriceSourceAgents
05/14/2004 Sold $1,120,000 Public records

Cost estimate history

YearTaxAssessmentMarket
2014 $5,840 $487,088 N/A

Where is 323 Monterey Blvd, Hermosa Beach CA located on map?

Market Activities

To date, we have no information about market activities in 2025
Oct 2023 Sold
323 Monterey Blvd
Price history :
$3M
  • Multi-Family
Jun 2023 Sold
323 Monterey Blvd
Price history :
  • Multi-Family

View more

Monterey Blvd Fire Incident History

To date, we have no information about fire incidents in 2025
26 May 2007 Building fires
Property Use —
1 or 2 family dwelling
Area of Origin —
Wall surface: exterior
First Ignition —
Rubbish, trash, or waste
Heat Source —
Heat from other open flame or smoking materials
03 Sep 2006 Building fires
Property Use —
Multifamily dwellings
Area of Origin —
Structural area, other
First Ignition —
Organic materials, other
Heat Source —
Hot or smoldering object, other

Monterey Blvd Incidents registered in FEMA
(Federal Emergency Management Agency)

To date, we have no information about incidents registered in FEMA in 2025
19 Oct 2015 Building fires
19 Oct 2015 Building fires

Properties Nearby

Street AddressResidens/Landlords
201 Monterey Blvd, Hermosa Beach, CA 90254-5146
Multi-Family Home
  • 6 beds
  • 6 baths
  • 3,468 sqft
  • Built in 1990
Medicoverage Inc, Michael R Ash
701 Monterey Blvd, Hermosa Beach, CA 90254-4563
Multi-Family Home
  • 10 beds
  • 13 baths
  • Lot: 8,013 sqft
  • Built in 1957
Chris Bartee, M Blacher
760 Monterey Blvd, Hermosa Beach, CA 90254-4549
Single Family Residential
  • 3 beds
  • 3 baths
  • Lot: 1,501 sqft
  • Built in 1990
Barbara Lee-Leviten, Rodney Paulus
814 Monterey Blvd, Hermosa Beach, CA 90254-4202
Single Family Residential
  • 3 beds
  • 2 baths
  • Lot: 1,379 sqft
  • Built in 1968
Susan D Barham, Scott Elia
Amma Ramana, LLC, Brunik Holdings, Inc
936 Monterey Blvd, Hermosa Beach, CA 90254-4207
Single Family Residential
  • 2 beds
  • 1 bath
  • Lot: 2,799 sqft
  • Built in 1935
304 N Ardmore LLC, Connolly Creations, LLC
944 Monterey Blvd, Hermosa Beach, CA 90254-4210
Multi-Family Home
  • 20 beds
  • 18 baths
  • Lot: 5,601 sqft
  • Built in 1972
Bd Bakes LLC, F A S T Attorney Ser
1088 Monterey Blvd, Hermosa Beach, CA 90254-3745
Condominium (Residential)
  • 3 beds
  • 4 baths
  • Lot: 2,090 sqft
  • Built in 2008
1123 Monterey Blvd, Hermosa Beach, CA 90254-3786
Multi-Family Home
  • Lot: 4,006 sqft
  • Built in 1949
Norbrook Consulting LLC, Stephen Leather
 

FAQ about the house at 323 Monterey Blvd, Hermosa Beach, CA


NOTICE: You may not use SpamRoom or the information it provides to make decisions about employment, credit, housing or any other purpose that would require Fair Credit Reporting Act (FCRA) compliance. SpamRoom is not a Consumer Reporting Agency (CRA) as defined by the FCRA and does not provide consumer reports.