Purchase History
| Date | Event | Price | Source | Agents | 
|---|---|---|---|---|
| 10/18/2013 | Sold | $1,240,000 | Public records | |
| 09/26/2002 | Sold | $655,000 | Public records | |
| 01/28/2000 | Sold | $561,000 | Public records | 
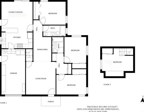
PURCHASE HISTORY 2802 Ponce Ave, Belmont CA
Cost estimate history
| Year | Tax | Assessment | Market | 
|---|---|---|---|
| 2014 | $14,921 | $1,240,000 | N/A | 
Market Activities
Ponce Ave Fire Incident History
To date, we have no information about fire incidents in 2025
            
        
                    26 Apr 2017
                    Fire, other
                
                Property Use — 
                 Schools, non-adult
               Area of Origin — 
                 Cooking area, kitchen
               First Ignition — 
                 Box, carton, bag, basket, barrel
               Heat Source — 
                 Radiated, conducted heat from operating equipment
               Ponce Ave Incidents registered in FEMA 
(Federal Emergency Management Agency)
To date, we have no information about incidents registered in FEMA in 2025
            
        
                    01 Jan 2015
                    Carbon monoxide incident
                
                Property Use — 
                 1 or 2 family dwelling
               
                    04 Jan 2008
                    Power line down
                
                Property Use — 
                 1 or 2 family dwelling
               
                    24 Sep 2006
                    Outside rubbish fire, other
                
                Property Use — 
                 1 or 2 family dwelling
               Properties Nearby
| Street Address | Residens/Landlords | |
|---|---|---|
| 2706 Ponce Ave, Belmont, CA 94002-1543   Single Family Residential 
 | BELMONT TRUCKING INC, Chris Cornell | |
| 2707 Ponce Ave, Belmont, CA 94002-1542   Single Family Residential 
 | X Ding, Megan Morales | |
| 2709 Ponce Ave, Belmont, CA 94002-1542   Single Family Residential 
 | Cinema Michelle Jones, Brian Lechthaler | |
| 2711 Ponce Ave, Belmont, CA 94002-1542   Single Family Residential 
 | BELMONT WOMAN'S CLUB, California Federation of | |
| 2801 Ponce Ave, Belmont, CA 94002-1435   Single Family Residential 
 | David M Gherardi, Elaine C Gherardi | |
| 2803 Ponce Ave, Belmont, CA 94002-1435   Single Family Residential 
 | Chapman Construction, Chapman Construction | |
| 2804 Ponce Ave, Belmont, CA 94002-1436   Single Family Residential 
 | Tatum G Boyd, Sean F Clarke | |
| 2806 Ponce Ave, Belmont, CA 94002-1436   Single Family Residential 
 | James Anderson, Mona Anderson | |
| 2809 Ponce Ave, Belmont, CA 94002-1435   Single Family Residential 
 | Gordon's Classic Motorcycles, Larry M Haman | |
| 2810 Ponce Ave, Belmont, CA 94002-1436   Single Family Residential 
 | Darline R Armstrong, Kay Harrison | 
 
                                                                     
                                                                     
                                                                     
                                                                     
                                                                     
                                                                     
                                                                     
                                                                     
                                                                     
                                                                     
                                                                     
                                                                     
                                                                     
                                                                     
                                                                     
                                                                     
                                                                     
                                                                     
                                                                     
                                                                     
                                                                     
                                                                     
                                                                    