2581 Savona Blvd Fort Pierce, FL 34953 / 7319

  • 3 Beds
  • 2 Baths
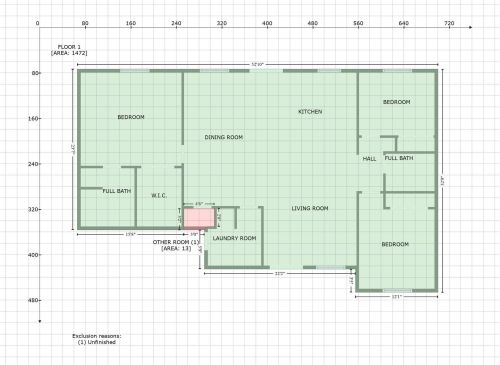
  • 1.549 square feet
Sold Apr 2024
$440,000
Property Report

Information about property on 2581 Savona Blvd, Fort Pierce FL, 34953-7319. Find out owner contacts, building history, price, neighborhood at Homemetry Address Directory.

Property Details

Where is 2581 Savona Blvd, Fort Pierce FL located on map?

Market Activities

To date, we have no information about market activities in 2025
Apr 2024 Sold
2581 Savona Blvd
Price history :
  • Single Family
  • 1,549 sqft
  • 3 beds
  • 2 baths
Dec 2023 Sold
2581 Savona Blvd
Price history :
  • Single Family
  • 1,549 sqft
  • 3 beds
  • 2 baths
Oct 2023 Sold
2581 Savona Blvd
Price history :
  • Single Family
  • 1,549 sqft
  • 3 beds
  • 2 baths

View more

Savona Blvd Fire Incident History

To date, we have no information about fire incidents in 2025
23 Jul 2017 Water vehicle fire
Property Use —
Vacant lot
Area of Origin —
Engine area, running gear, wheel area
First Ignition —
Flammable liquid/gas - in/from engine or burner
Heat Source —
Spark, ember or flame from operating equipment
19 Nov 2016 Grass fire
Area of Origin —
Wildland, woods
Heat Source —
Heat source: other
30 Mar 2016 Brush, or brush and grass mixture fire
Property Use —
1 or 2 family dwelling
Area of Origin —
Highway, parking lot, street: on or near
First Ignition —
Light vegetation - not crop, including grass
29 Jan 2015 Road freight or transport vehicle fire
Property Use —
Residential street, road or residential driveway
Area of Origin —
Cargo/trunk area - all vehicles
First Ignition —
Box, carton, bag, basket, barrel
Heat Source —
Radiated, conducted heat from operating equipment

View more

Savona Blvd Incidents registered in FEMA
(Federal Emergency Management Agency)

To date, we have no information about incidents registered in FEMA in 2025
25 Dec 2015 Unauthorized burning
Property Use —
1 or 2 family dwelling
16 Oct 2014 Gasoline or other flammable liquid spill
Property Use —
1 or 2 family dwelling
21 Feb 2014 Forest, woods or wildland fire
Property Use —
Vacant lot
23 Nov 2002 False alarm or false call, other
Property Use —
Church, mosque, synagogue, temple, chapel

View more

Properties Nearby

Street AddressResidens/Landlords
J Boykin
 

FAQ about the house at 2581 Savona Blvd, Fort Pierce, FL


NOTICE: You may not use SpamRoom or the information it provides to make decisions about employment, credit, housing or any other purpose that would require Fair Credit Reporting Act (FCRA) compliance. SpamRoom is not a Consumer Reporting Agency (CRA) as defined by the FCRA and does not provide consumer reports.