211 197th Ave Hollywood, FL 33029 / 3342

Sold Feb 2022
$526,500
Property Report

Information about property on 211 197th Ave, Hollywood FL, 33029-3342. Find out owner contacts, building history, price, neighborhood at Homemetry Address Directory.

Property Details

Facts

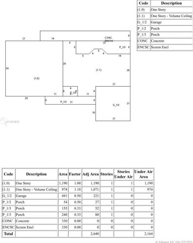
  • Built in 1992
  • Lot size 0,26 acres
  • Floor size 2,288 sqft
  • Building 1
  • Bedrooms 4
  • Stories 1 story
  • Foundation Slab
  • Air conditioning Central
  • Exterior Home Features
  • Exterior material Cement concrete
  • Roof type Wood Shake/ Shingles
  • Parking & Garage
  • Parking Garage
  • Parking spaces 2

Listing info

  • Last sold Sep 1996 for $152,500

Householders and Tenants for 211 197th Ave, Hollywood FL

Possible residents contact details

Person Name Phone Number Additional Info
C Jao
954-441-****
Chih T Jao Age: 60
954-441-****
Claire Jao Age: 61
954-442-****
Residential status:
Homeowner
Job:
Professional/Technical
Dong Y Hsieh Age: 59
954-441-****
Jill Hsieh Age: 32
Songyang Hsieh
786-512-****

Businesses

Organization Phone Number Additional Info
Container to Go Inc
Industry:
Whol Industrial/Service Paper
Type of Business:
Domestic for Profit Corporation
Dong Yang Hsieh PA
Industry:
Whol Nondurable Goods
J & H Group, Inc
Type of Business:
Domestic for Profit Corporation
Megasoft (Miami) Hygiene Products Corp
Industry:
Nonclassifiable Establishments
Type of Business:
Domestic for Profit Corporation

Possible Businesses

Organization Phone Number Additional Info
The Furniture Distributor of Miami Inc
Type of Business:
Domestic for Profit Corporation
Macho Bike International, Inc
Industry:
Ret Sporting Goods/BicyclesNonclassifiable EstablishmentsSporting Goods and Bicycle Shops, Nsk
Type of Business:
Domestic for Profit Corporation
Overseas Engineering
954-442-****
Industry:
Engineering Services

Purchase History

DateEventPriceSourceAgents
10/12/1996 Sold $152,500 Public records

Cost estimate history

YearTaxAssessmentMarket
2014 $4,451 N/A N/A
2013 N/A $269,360 $269,360

Where is 211 197th Ave, Hollywood FL located on map?

Market Activities

To date, we have no information about market activities in 2025
Feb 2022 Sold
211 197th Ave
Price history :
  • Single Family
  • 3,054 sqft
  • 3 beds
  • 3 baths
Jul 2021 Sold
211 197th Ave
Price history :
  • Single Family
  • 3,054 sqft
  • 3 beds
  • 3 baths

View more

197th Ave Incidents registered in FEMA
(Federal Emergency Management Agency)

To date, we have no information about incidents registered in FEMA in 2025
28 Apr 2011 Arcing, shorted electrical equipment
Property Use —
1 or 2 family dwelling
29 Apr 2010 Gas leak (natural gas or LPG)
Property Use —
1 or 2 family dwelling
30 Aug 2002 Good intent call, other
Property Use —
1 or 2 family dwelling
03 Aug 2002 System malfunction, other
Property Use —
1 or 2 family dwelling

View more

Properties Nearby

Street Address Residens/Landlords
221 197 Ave, Hollywood, FL 33029-3342
Single Family
  • 3 beds
  • 2 baths
  • 2,603 sqft
  • Built in 1992
International Florida Foods, Inc, Charles Gilbert
301 197 Ave, Hollywood, FL 33029-3341
Single Family Residential
  • 4 beds
  • 2 baths
  • 3,129 sqft
  • Built in 1992
Elaine M Cereghini, Robert C Cereghini
411 197 Ave, Hollywood, FL 33029-3340
Single Family Residential
  • 4 beds
  • 2 baths
  • 2,745 sqft
  • Built in 1992
James White, Laura White
431 197 Ave, Hollywood, FL 33029-3340
Single Family Residential
  • 4 beds
  • 2 baths
  • 3,130 sqft
  • Built in 1992
MM INFORMATION SERVICES INC, David Jerome
450 197 Ave, Hollywood, FL 33029-3336
Single Family Residential
  • 4 beds
  • 3 baths
  • 3,401 sqft
  • Built in 1995
Erwin S Franken, Alan Katz
701 197 Ave, Hollywood, FL 33029-3338
Single Family
  • 4 beds
  • 2 baths
  • 2,745 sqft
Anthony I Catanzaro, Frank A Catanzaro
915 197 Ave, Hollywood, FL 33029-3363
Single Family Residential
  • 4 beds
  • 3 baths
  • 3,731 sqft
  • Built in 1995
DYNAMIC CONCEPTS EDITING, INC, Empowered Realty Consultants, Inc
930 197 Ave, Hollywood, FL 33029-3362
Single Family
  • 3,187 sqft
  • Built in 1995
Alexis Lopez, Magic Data, Inc
935 197 Ave, Hollywood, FL 33029-3363
Single Family Residential
  • 4 beds
  • 3 baths
  • Lot: 8,899 sqft
  • Built in 1995
EGRET PROPERTY MANAGEMENT LLC, GULDI REAL ESTATE GROUP, LLC
940 197 Ave, Hollywood, FL 33029-3362
Single Family Residential
  • Lot: 9,100 sqft
  • Built in 1995
NACCOM, INC, NACCOM INT'L INC
 

FAQ about the house at 211 197 Ave, Hollywood, FL


NOTICE: You may not use SpamRoom or the information it provides to make decisions about employment, credit, housing or any other purpose that would require Fair Credit Reporting Act (FCRA) compliance. SpamRoom is not a Consumer Reporting Agency (CRA) as defined by the FCRA and does not provide consumer reports.