12 Bunker Ln, Newton MA  02465-1706 exterior

12 Bunker Ln Newton, MA 02465 / 1706

Residence for Single Family

(UPDATED: 09/21/2025)
  • 3 Beds
  • 2 Baths
  • 3.102 square feet
Property Report

Information about property on 12 Bunker Ln, Newton MA, 02465-1706. Find out owner contacts, building history, price, neighborhood at Homemetry Address Directory.

Property Details

Put up in 1941, this property has more than thirty-one hundred square feet of effective area and sits on 0,17 acres.

Facts

  • Built in 1941
  • Property use Single Family
  • Lot size 7,560 sqft
  • Effective area 3,102 sqft
  • Building type Residential
  • Rooms 6
  • Bedrooms 3
  • Bathrooms 1
  • Stories 2
  • Exterior condition Average
  • Trim Half Wall
  • Foundation type Concrete
  • Roof material Asphalt Shingl
  • Fuel type Gas
  • Air conditioning None
  • Frontage 80 feet
  • Basement area 816 sqft
  • Enclosed porch area 112 sqft
  • Deck area 338 sqft
  • Attached garage area 220 sqft
  • Heating & Cooling
  • Heat type Forced Air-Duc
  • Exterior Home Features
  • Exterior walls Vinyl Siding
  • Roof type Gable

Features

  • Interior condition: Good

Householders and Tenants for 12 Bunker Ln, Newton MA

Possible residents contact details

Person Name Phone Number Additional Info
Alex J Castoldi
617-527-****
Ashlyn Jane Parks Age: 60
Kevin P Barry
Mary T Castoldi Age: 99
617-527-****
Sarah L Barry
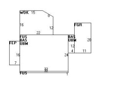
12 Bunker Ln, Newton MA  02465-1706 plot plan 12 Bunker Ln, Newton MA  02465-1706 floor plan 12 Bunker Ln, Newton MA  02465-1706 aerial view

Purchase History

DateEventPriceSourceAgents
09/03/2014 Sold $730,000 Agent Submission Lynne Eliopoulos

Cost estimate history

YearAssessment
2016 $607,100
2015 $514,500
2014 $490,600
2013 $490,600
2012 $490,600
2011 $488,800
2010 $498,800
2009 $509,000
2008 $509,000
2007 $527,400
2006$512,000
2005$487,600
2004$450,800
2003$402,500
2002$402,500
2001$344,500
2000$314,600
1999$286,300
1998$260,900
1997$246,100
1996$234,400
1995$221,100
1994$216,800
1993$216,800
1992$223,300

Where is 12 Bunker Ln, Newton MA located on map?

Properties Nearby

Street Address Residens/Landlords
Harold S Landers
 

FAQ about the house at 12 Bunker Ln, Newton, MA


NOTICE: You may not use SpamRoom or the information it provides to make decisions about employment, credit, housing or any other purpose that would require Fair Credit Reporting Act (FCRA) compliance. SpamRoom is not a Consumer Reporting Agency (CRA) as defined by the FCRA and does not provide consumer reports.