11 Jones Ct, Newton MA  02458-1219 exterior

11 Jones Ct Newton, MA 02458 / 1219

Residence for Single Family

(UPDATED: 08/21/2025)
  • 3 Beds
  • 1 Baths
  • 1.974 square feet
Property Report

Information about property on 11 Jones Ct, Newton MA, 02458-1219. Find out owner contacts, building history, price, neighborhood at Homemetry Address Directory.

Property Details

This property has more than nineteen hundred square feet of effective area and sits on 0,07 acres.

Facts

  • Built in 1920
  • Property use Single Family
  • Lot size 2,891 sqft
  • Effective area 1,974 sqft
  • Building type Residential
  • Rooms 6
  • Bedrooms 3
  • Stories 2
  • Exterior condition Average
  • Trim None
  • Foundation type Brick/Fldstone
  • Roof material Asphalt Shingl
  • Fuel type Oil
  • Frontage 45 feet
  • Basement area 544 sqft
  • Shed area 54 sqft
  • Porch area 102 sqft
  • Heating & Cooling
  • Heat type Hot Water
  • Exterior Home Features
  • Exterior walls Vinyl Siding
  • Roof type Gable

Features

  • Kitchen quality: Below Average

Householders and Tenants for 11 Jones Ct, Newton MA

Possible residents contact details

Person Name Phone Number Additional Info
Alan F Vachon Age: 75
617-244-****
Residential status:
Homeowner
Job:
Craftsman/Blue Collar
Carmela Leone
Carmela Vachon
Carmella E Vachon Age: 75
617-244-****
Residential status:
Homeowner
Job:
Clerical/White Collar
D Sasson
617-965-****
Michelle Vachon Age: 75
617-244-****
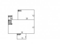
11 Jones Ct, Newton MA  02458-1219 plot plan 11 Jones Ct, Newton MA  02458-1219 floor plan 11 Jones Ct, Newton MA  02458-1219 aerial view

Cost estimate history

YearAssessment
2016 $364,400
2015 $340,600
2014 $323,800
2013 $323,800
2012 $323,800
2011 $324,200
2010 $330,800
2009 $337,600
2008 $337,600
2007 $386,900
2006$375,600
2005$357,700
2004$284,300
2003$253,800
2002$253,800
2001$202,200
2000$184,700
1999$168,100
1998$157,400
1997$157,400
1996$149,900
1995$139,700
1994$145,500
1993$145,500
1992$150,700

Where is 11 Jones Ct, Newton MA located on map?

Properties Nearby

Street AddressResidens/Landlords
8 Jones Ct, Newton, MA 02458-1219
Single Family
  • 4 beds
  • 2 baths
  • 2,148 sqft
  • Built in 1880
Chiming Tang, Simon C Tang
9 Jones Ct, Newton, MA 02458-1219
Single Family
  • 4 beds
  • 2.5 baths
  • 2,248 sqft
  • Built in 1920
TRIEU MY QUYEN, TRIEU MY QUYEN &AL
15 Jones Ct, Newton, MA 02458-1219
Condominium (Residential)
  • 3 beds
  • 2 baths
  • Lot: 5,404 sqft
  • Built in 1910
Jonathan J Foley, Margaret M Soohoo
17 Jones Ct, Newton, MA 02458-1219
Condominium (Residential)
  • 2 beds
  • 1 bath
  • Lot: 5,404 sqft
  • Built in 1910
Lela Durham, Melinda A Elwell
Guy Clemente, Janine M Clemente
19 Jones Ct, Newton, MA 02458-1219
Condominium (Residential)
  • 1 bed
  • 1 bath
  • Lot: 5,404 sqft
  • Built in 1910
Annabella L Gualdoni, Alison J Dewolfe
Dolores M Clemente, Corey S Nunes
21 Jones Ct, Newton, MA 02458-1219
Condominium (Residential)
  • 2 beds
  • 2 baths
  • Lot: 5,404 sqft
  • Built in 1910
Erja H Kajosalo, Nelli Weinstein
Anthony Clemente, Charles A Proia
John Kelvin
 

FAQ about the house at 11 Jones Ct, Newton, MA


NOTICE: You may not use SpamRoom or the information it provides to make decisions about employment, credit, housing or any other purpose that would require Fair Credit Reporting Act (FCRA) compliance. SpamRoom is not a Consumer Reporting Agency (CRA) as defined by the FCRA and does not provide consumer reports.