11 Bunker Ln, Newton MA  02465-1705 exterior

11 Bunker Ln Newton, MA 02465 / 1705

Residence for Single Family

(UPDATED: 07/16/2025)
  • 3 Beds
  • 1 Baths
  • 2.713 square feet
Property Report

Information about property on 11 Bunker Ln, Newton MA, 02465-1705. Find out owner contacts, building history, price, neighborhood at Homemetry Address Directory.

Property Details

This property has more than twenty-seven hundred square feet of effective area and sits on 0,18 acres.

Facts

  • Built in 1945
  • Property use Single Family
  • Lot size 7,740 sqft
  • Effective area 2,713 sqft
  • Building type Residential
  • Rooms 7
  • Bedrooms 3
  • Bathrooms 1
  • Stories 2
  • Exterior condition Average
  • Trim None
  • Foundation type Concrete
  • Roof material Asphalt Shingl
  • Fuel type Oil
  • Air conditioning Central
  • Frontage 80 feet
  • Basement area 624 sqft
  • Enclosed porch area 264 sqft
  • Attached garage area 253 sqft
  • Heating & Cooling
  • Heat type Hot Wtr Radiat
  • Exterior Home Features
  • Exterior walls Vinyl Siding
  • Roof type Gable

Householders and Tenants for 11 Bunker Ln, Newton MA

Possible residents contact details

Person Name Phone Number Additional Info
Bridget A Sadler
Lionel J Sadler Age: 101
617-527-****
M Sadler Age: 104
617-527-****
Margaret M Sadler Age: 104
617-527-****
Ruth O Sadler
617-527-****
Thilo Deckersbach
Residential status:
Homeowner
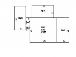
11 Bunker Ln, Newton MA  02465-1705 plot plan 11 Bunker Ln, Newton MA  02465-1705 floor plan 11 Bunker Ln, Newton MA  02465-1705 aerial view

Purchase History

DateEventPriceSourceAgents
11/28/2007 Sold $671,800 Public records

Cost estimate history

YearAssessment
2016 $560,700
2015 $524,000
2014 $498,500
2013 $498,500
2012 $498,500
2011 $496,600
2010 $499,000
2009 $509,200
2008 $509,200
2007 $527,300
2006$511,900
2005$487,500
2004$450,700
2003$402,400
2002$402,400
2001$344,700
2000$314,800
1999$286,400
1998$256,700
1997$242,200
1996$230,700
1995$217,700
1994$213,400
1993$213,400
1992$217,600

Where is 11 Bunker Ln, Newton MA located on map?

Properties Nearby

Street Address Residens/Landlords
Harold S Landers
 

FAQ about the house at 11 Bunker Ln, Newton, MA


NOTICE: You may not use SpamRoom or the information it provides to make decisions about employment, credit, housing or any other purpose that would require Fair Credit Reporting Act (FCRA) compliance. SpamRoom is not a Consumer Reporting Agency (CRA) as defined by the FCRA and does not provide consumer reports.